



Programme | Maison Individuelle |
Lieu | Crecy La Chapelle, France |
Client | Privé |
Surface | 140 m² |
Budget | 280 000 €HT |
Date | 2020 |
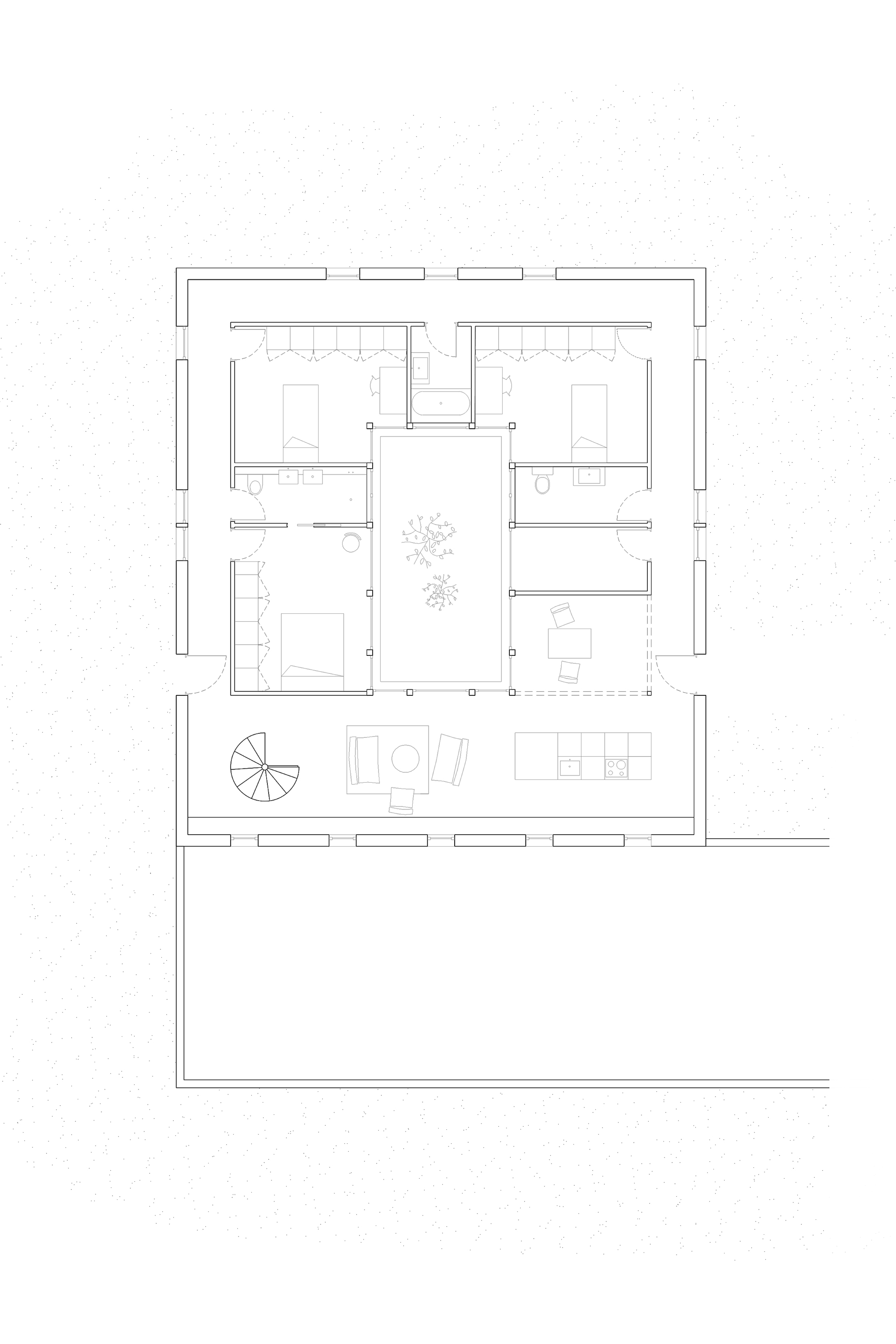
Lors de la visite de site et de notre rencontre avec les propriétaires, nous avons été frappés par deux choses :
- L’uniformisation des constructions de type pavillonnaire qui entourent la parcelle.
- Le bruit provenant de la route nationale toute proche. Face à un PLU et un règlement de lotissement contraignant et laissant peu de place à la recherche architecturale, nous avons fait le choix de prendre le contre-pied des typologies pavillonnaires génériques. Dans le respect des contraintes du PLU, nous proposons d’inverser les pans de toiture pour les mettre en regard. A la manière d’une villa antique, les hauts murs périphériques apportent protection et calme au patio intérieur. Isolé du bruit et des intempéries, il devient le point de fuite des différentes vues que donnent à voir les larges baies vitrées qui l’enserrent. La lumière infuse les espaces de vie situés au coeur du bâti. Une coursive périphérique dessert l’ensemble de ces pièces et s’élargit au Sud pour accueillir une cuisine familiale ouverte sur le séjour. Le matériau de construction principal que nous proposons pour ce projet est la brique « mono-mur » en terre cuite de 30 cm d’épaisseur. L’ensemble des façades sont recouvertes d’enduit terre composé de micro-billes d’argiles permettant une meilleure isolation thermique.