


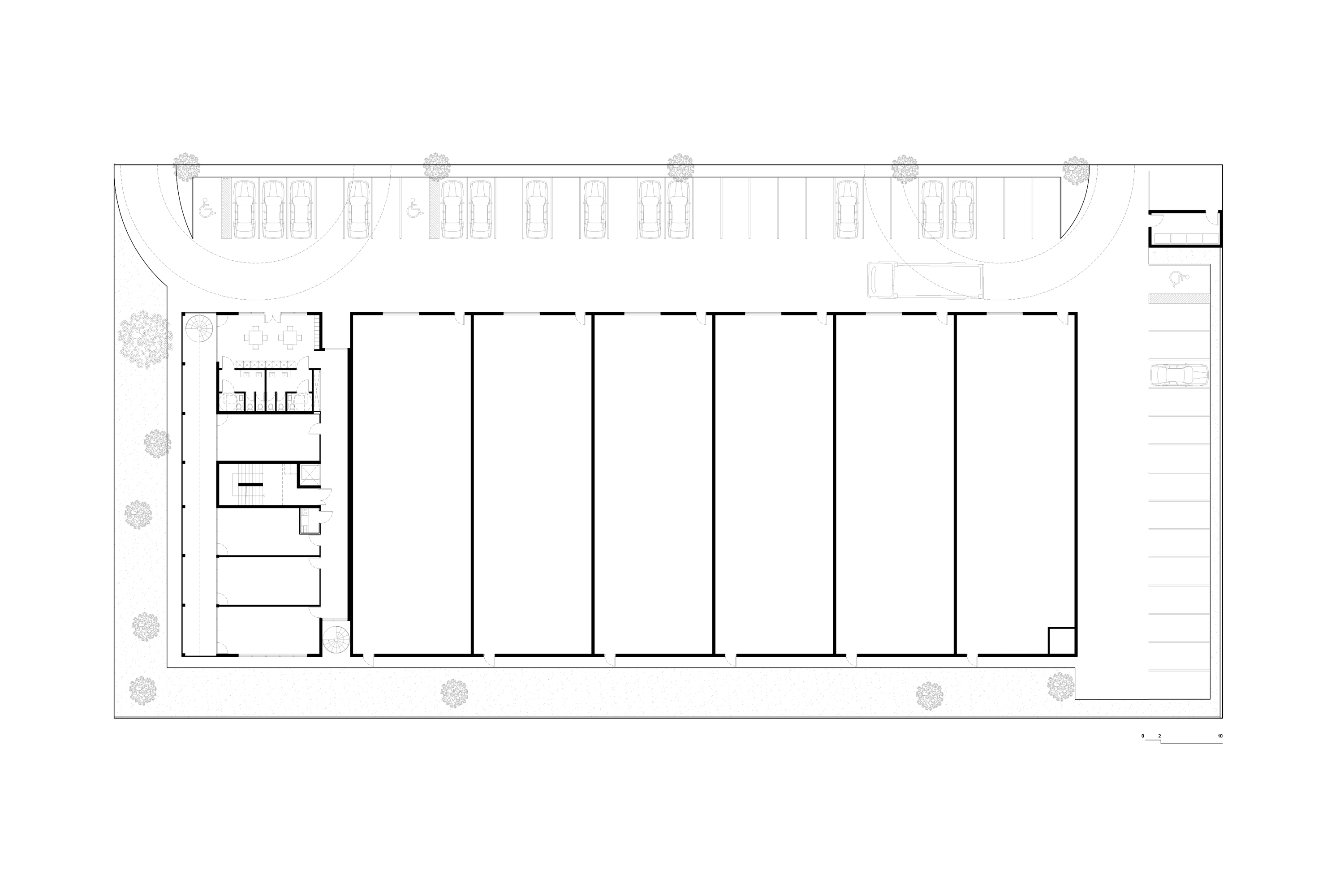
L’enjeu de ce projet a été de concevoir un bâtiment proposant un volume capable maximal, dans les limites autorisées par le PLU et le règlement du lotissement, tout en considérant une enveloppe budgétaire ferme. Le projet prévoit la construction d’un ensemble d’entrepôts, de locaux d’activités et de bureaux. Les plateaux sont livrés bruts, prêts à être aménagés.
Dans le but de réduire l’usage d’équipements énergivores, nous avons développé une façade bioclimatique basée sur un système de double-peau qui permet de profiter des avantages thermiques de l’environnement. Cette épaisseur supplémentaire isole du froid l’hiver et filtre le rayonnement solaire l’été. Les surchauffes estivales étant préservées par un système de ventilation naturelle de la double-peau. Les façades se composeront de panneaux partiellement perforés afin de permettre un apport de lumière naturelle dans les locaux. Des surfaces vitrées compléteront cette fonction dans les bureaux et le volume intermédiaire. La totalité de la toiture est doublée d’une couche végétalisée pour complété le dispositif bio-climatique.
Programme | Locaux d'Activité et Bureaux |
Lieu | Le Mesnil Amelot, France |
Client | Atelier BLM |
Surface | 2 430 m² |
Budget | 1 500 000 €HT |
Date | 2022 |