




















Programme | Bureaux |
Lieu | Paris, France |
Client | Mutuelle du Ministère de la Justice |
Surface | 240 m² |
Budget | 350 000 €HT |
Date | 2016 |
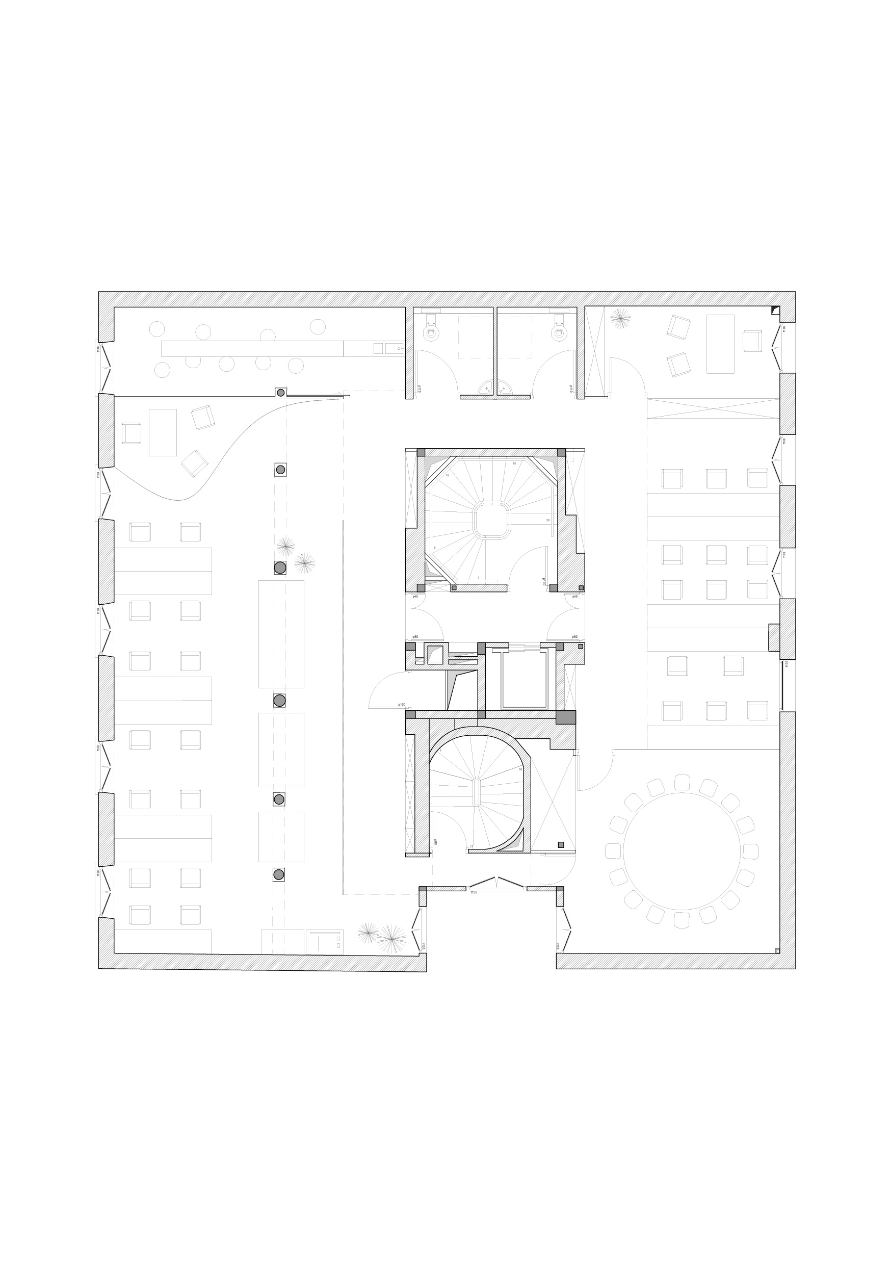
L’enjeu de ce projet était de faire cohabiter un centre d’appel et des bureaux regroupant une quarantaine de personnes. Le niveau de 238m² s’organise autour d’un noyau central qui concentre les accès et les réseaux techniques. Dans la continuité des espaces de travail se trouvent, sur chacune des ailes, une salle de réunion ainsi qu’un espace commun pour les pauses et le déjeuner. Face à une trame structurelle hasardeuse, l’ensemble du mobilier a été dessiné sur mesure et dissimule, dans sa structure, les branchements électriques. Un bureau de direction aux cloisons courbes s’insert dans un espace résiduel. Le nombre limité de portes et de cloisons permet une lecture instinctive du lieu et une circulation libre. Les mailles métalliques perforées qui font office de séparation entre les bureaux et les circulations permettent de filtrer les vues et le son. Nous avons fait le choix de revêtir le sol d’un matériau naturel durable: le liège. En effet, seule l’écorce est prélevée (tous les 9 ans environ) sans que cela altère la vie du chêne qui le porte. Il est naturellement ininflammable et apporte un confort acoustique particulier. Les variations de ses motifs brouillent les limites de sa mise en oeuvre en plaques et donnent l’illusion d’un sol unifié.